Mieten Einfamilienhaus, Einfamilienhaus, Pod vinohradami, Galanta, Slo
Land.: Slowakei
Ort.: Galanta
Ort.: Pata
Straße.: Pod vinohradami
Mieten - Einfamilienhaus - Neubau
800,- €/Monat
Energie:
200 € +200,00€ Betriebskosten
Bieten Sie einen eigenen Preis an 200 € +200,00€ Betriebskosten
9499x Das Angebot erschien im Suchergebnis / 209x Das Angebot wurde besichtigt / 209x Das Angebot wurde im diese Monat besichtigt
Ihre Bewertung des Angebots
Details
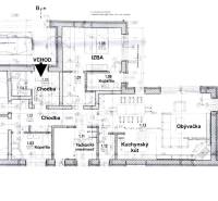
| Grundstücksfläche | 557 m² |
|---|---|
| Nutzfläche | 205 m² |
| Grundfläche | 557 m² |
| Nutzungsfläche | 122 m² |
| Etage | nicht angegeben |
| Etagenanzahl | 1 |
| Anzahl von Zimmer | 4 |
| Eigentumsart | Alleinbesitz |
| Zustand | neu erbaut |
| Status | reserviert |
| Müllabfuhr | ja |
| Wasserleitung | Ortswassernetz |
| Elektrizität | 230V |
| Kanal | Kleinkläranlage |
| Badezimmer | Duschecke und Badewanne |
| Heizungsart | eigenes – kombiniert |
| Terrasse | ja |
|---|---|
| Keller | nein |
| Garage | nein |
| Parkplatz | eigenes/reserviertes |
| Ingenieurnetze | ja |
| Baumaterial | Ziegel |
| Wärmedämmung | ja |
| Klimatisierung | ja |
| Energieausweis | B |
| Vorgarten | ja |
| Barrierefreiheit | ja |
| Fenster | Kunststoff |
| Hangneigung | eben |
| Zufahrtsstraße | Asphaltstraße |
| Neubau | ja |
