Kaufen Hotels und Pensionen, Hotels und Pensionen, Šaľa, Slowakei
Land.: Slowakei
Ort.: Šaľa
Ort.: Šaľa
4509x Das Angebot erschien im Suchergebnis / 246x Das Angebot wurde besichtigt / 116x Das Angebot wurde im diese Monat besichtigt
Ihre Bewertung des Angebots
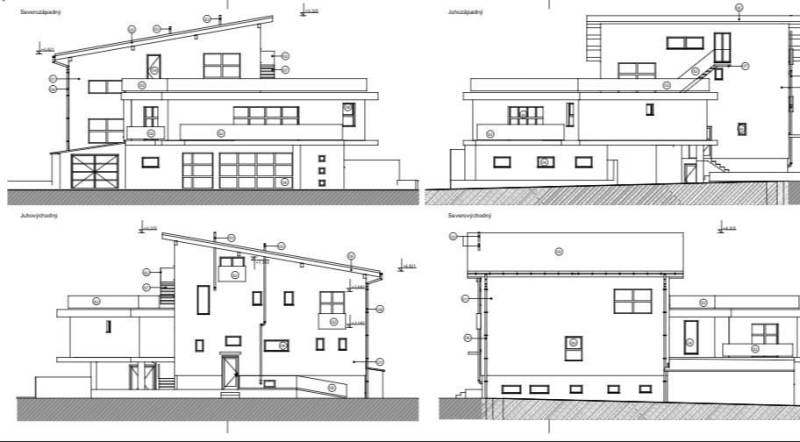
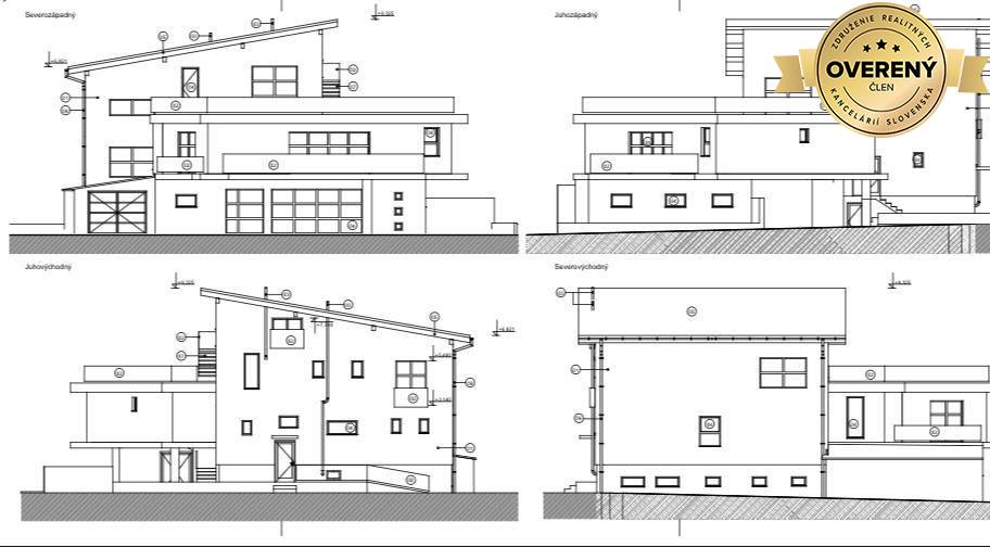
Details
| Grundstücksfläche | 1133 m² |
|---|---|
| Nutzfläche | 346 m² |
| Nutzungsfläche | 600 m² |
| Etagenanzahl | 4 |
| Anzahl von Zimmer | 19 |
| Zustand | zum Teil umgebaut |
| Status | aktiv |
| Wasserleitung | Brunnen und Ortswassernetz |
| Elektrizität | 230V |
| Gasleitung | ja |
|---|---|
| Kanal | ja |
| Heizungsart | eigenes |
| Terrasse | ja |
| Baumaterial | Ziegel |
| Wärmedämmung | ja |
| Klimatisierung | ja |
| Energieausweis | nein |
| Fenster | Kunststoff |
