Kaufen Ferienwohnung, Ferienwohnung, Trogir, Kroatien
13100x Das Angebot erschien im Suchergebnis / 273x Das Angebot wurde besichtigt / 273x Das Angebot wurde im diese Monat besichtigt
HR-reality bietet Ihnen exklusiv moderne Apartments in einem Neubau mit insgesamt fünf Wohneinheiten. Die Erdgeschosswohnung verfügt über einen eigenen Parkplatz, Meerblick und Zugang zum Pool.
Das Haus liegt nur 150 m vom nächsten Strand entfernt!
Folgende Apartments stehen zur Verfügung:
Erdgeschoss:
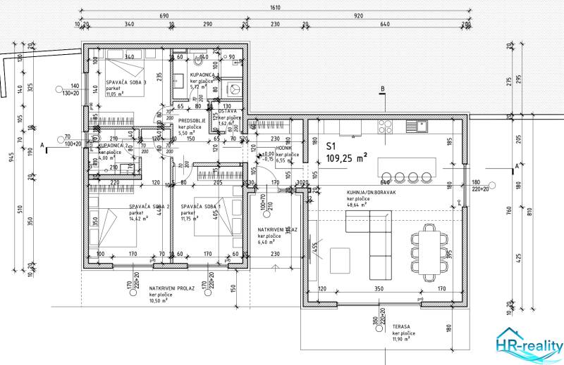
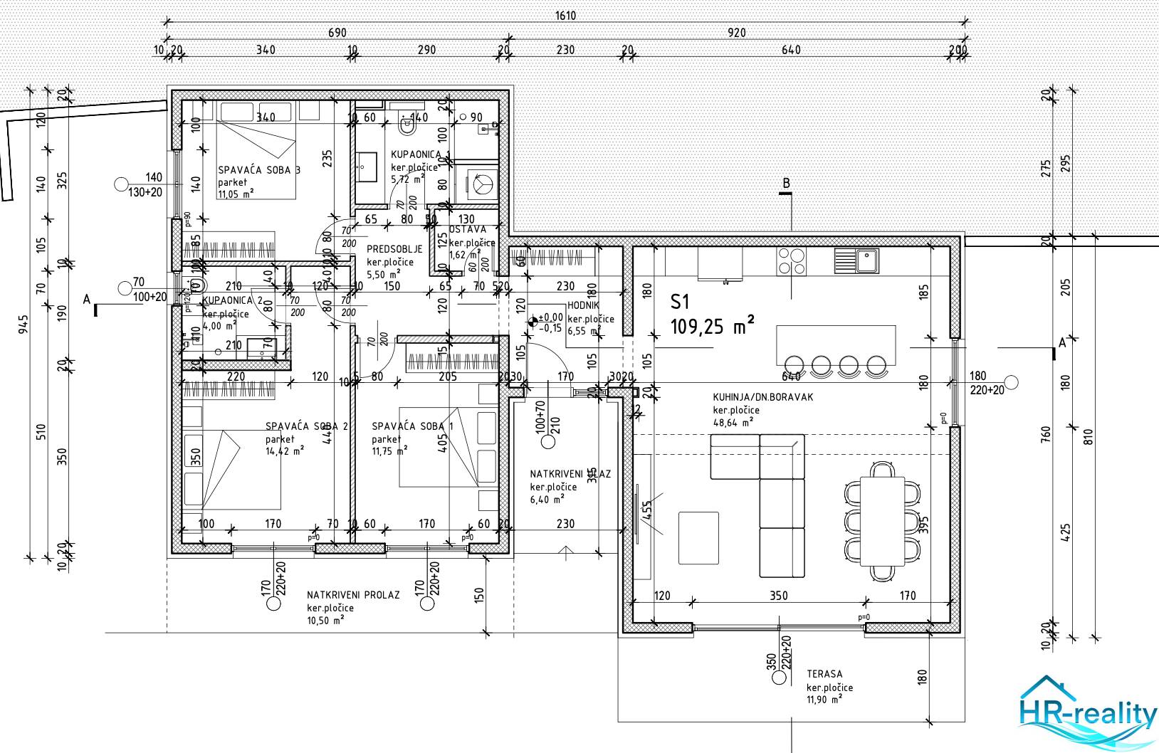
Apartment S1 – 4-Zimmer-Apartment mit einer Gesamtfläche von 140 m², Preis: 350.000 Euro
Das Apartment besteht aus einem Flur, zwei Badezimmern, einer Speisekammer, drei Schlafzimmern und einem großzügigen Wohnbereich (Küche/Esszimmer/Wohnzimmer) mit direktem Zugang zu einer überdachten Terrasse, einem gepflasterten Bereich mit privatem Pool und einem schönen Garten.
Das Apartment bietet Meerblick und zwei Parkplätze.
1. Obergeschoss:
Wohnung S2 – VERKAUFT
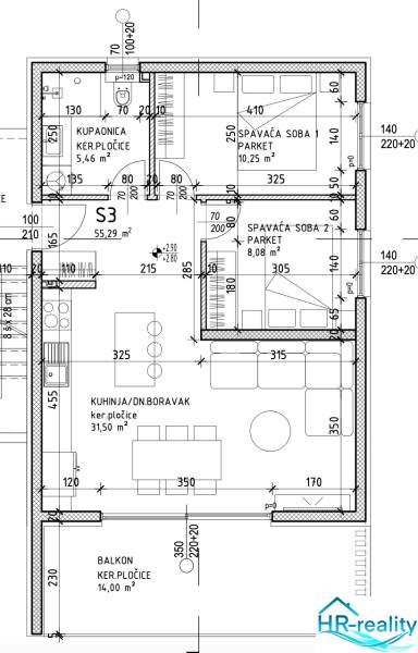
Wohnung S3 – 3-Zimmer-Wohnung mit einer Gesamtfläche von 62 m², Preis: 230.000 Euro
Die Wohnung besteht aus Flur, Badezimmer, zwei Schlafzimmern und einem Wohnbereich (Küche/Esszimmer/Wohnzimmer) mit direktem Zugang zu einer überdachten Terrasse von 14,30 m².
Die Wohnfläche beträgt 55,31 m².
Ein unüberdachter Außenstellplatz ist im Preis inbegriffen.
2. Obergeschoss:
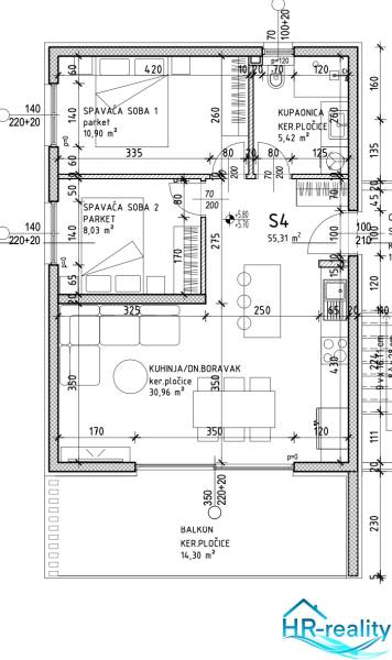
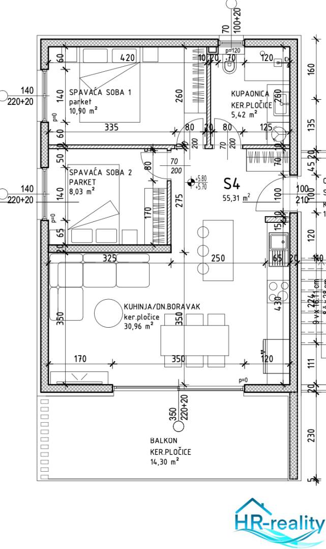
Wohnung S4 – 3-Zimmer-Wohnung mit einer Gesamtfläche von 140 m², Preis: 280.000 Euro
Die Wohnung besteht aus einem Flur, einem Badezimmer, zwei Schlafzimmern und einem Wohnbereich (Küche/Esszimmer/Wohnzimmer) mit direktem Zugang zu einem überdachten Balkon (14,30 m²).
Die Wohnfläche beträgt 55,31 m².
Zur Wohnung gehört eine private Dachterrasse (69,90 m²) mit freiem Panoramablick auf das Meer sowie ein Außenstellplatz.
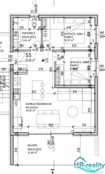
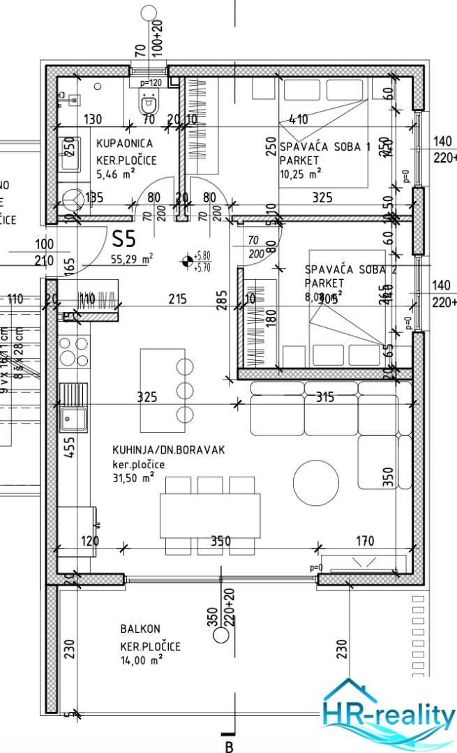
Wohnung S5 – 3-Zimmer-Wohnung mit einer Gesamtfläche von 140 m², Preis: 280.000 Euro
Die Wohnung besteht aus einem Flur, einem Badezimmer, zwei Schlafzimmern und einem Wohnbereich (Küche/Esszimmer/Wohnzimmer) mit direktem Zugang zu einem überdachten Balkon (14,30 m²).
Die Wohnfläche beträgt 55,31 m².
Die Wohnung verfügt über eine private Dachterrasse mit 69,90 m² Fläche und freiem Panoramablick auf das Meer sowie einen Außenstellplatz.
Der Bau dieses Projekts hat bereits begonnen und soll Anfang 2027 abgeschlossen sein. Die Finanzierung erfolgt in Raten. Durch die Unterzeichnung eines Vorvertrags in dieser Bauphase kann der Kunde den Gesamtpreis der Wohnung für die gesamte Bauzeit festlegen.
Das Projekt befindet sich in exzellenter, beliebter Lage in Okrug Gornij, nahe dem Zentrum von Trogir und nur wenige Schritte vom Strand entfernt.
Für weitere Informationen stehen wir Ihnen gerne zur Verfügung.
Die Maklerprovision beträgt 3 % des Kaufpreises und beinhaltet:
– alle Kosten für die Objektbesichtigungen,
– Dolmetscherdienste durch einen zertifizierten Dolmetscher (falls erforderlich),
– Erstellung beglaubigter zweisprachiger Verträge,
– Unterstützung bei der Beschaffung von Unterlagen zu Energie, Internet etc.,
– Zusammenarbeit mit geprüften Innenarchitekten und Gartengestaltern,
– Beratung und Unterstützung bei der Schaffung der Voraussetzungen für eine Geschäftstätigkeit in Kroatien, falls Sie die Immobilie zu Geschäftszwecken erwerben möchten.
Ihre Bewertung des Angebots
Kontakt
Details
| Grundfläche | 140 m² |
|---|---|
| Nutzungsfläche | 80 m² |
| Etagenanzahl | 2 |
| Anzahl von Zimmer | 4 |
| Eigentumsart | Alleinbesitz |
| Status | aktiv |
| Internet | Lokaler Anbieter |
| Badezimmer | ja |
| Heizungsart | eigenes |
| Balkon | ja |
| Terrasse | ja |
| Parkplatz | eigenes/reserviertes |
|---|---|
| Wärmedämmung | ja |
| Swimmingpool | extern |
| Klimatisierung | ja |
| TV-Kabel | ja |
| Energieausweis | A |
| Vorgarten | ja |
| Barrierefreiheit | ja |
| Fenster | Kunststoff |
| Neubau | ja |
Kontaktformular
Es könnte euch auch interessieren
Kaufen Ferienwohnung
45 m2
Trogir
185.000,- €
Kaufen Ferienwohnung
51 m2
Trogir
300.000,- €
Kaufen Ferienwohnung
48 m2
Trogir
150.000,- €
Kaufen Ferienwohnung
61 m2
Trogir
335.000,- €
Kaufen Ferienwohnung
62 m2
Trogir
339.885,- €
Kaufen Ferienwohnung
65 m2
Trogir
215.000,- €
Kaufen Ferienwohnung
100 m2
Trogir
390.000,- €
Kaufen Ferienwohnung
45 m2
Trogir
295.000,- €
Kaufen Ferienwohnung
100 m2
Trogir
400.000,- €
Kaufen Ferienwohnung
45 m2
Trogir
179.000,- €
Kaufen Ferienwohnung
80 m2
Trogir
330.000,- €
